
Mairie de Reugny
Restauration du sol de la mairie de Reugny.
La mosaïque est composée de trois "tapis" en enfilade menant d'une entrée à l'autre de la mairie et d'un quatrième "tapis" au pied de l'escalier qui s'élève vers le premier étage. Les médaillons au centre des tapis reprennent des motifs floraux sur fond arlequin - composé de tesselles de marbres multicolores. La mosaïque a subi l'usure et les salissures causées par l'intense fréquentation du lieu, des fissures sont apparues, témoignant des mouvements naturels du bâtiment.
Interventions : nettoyage de l'ensemble du sol à la monobrosse, purge des anciennes lacunes, reprise des fissures et des tesselles manquantes, ponçage des fissures restaurées, finition à la cire.
plan de la restauration
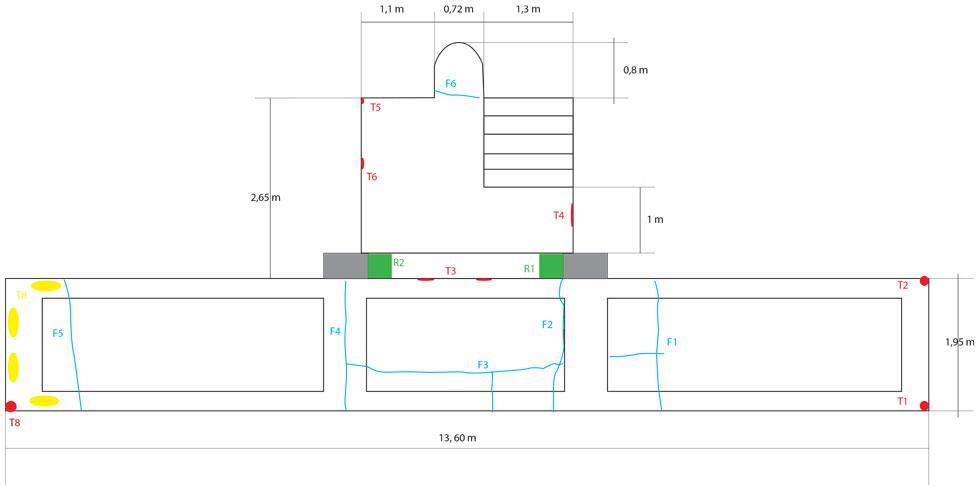
Situation des désordres sur l'ensemble du sol, fissures, restaurations anciennes, tesselles manquantes.

fissure avant reprise
Avant la restauration. Fissure comblée par du ciment et sol très encrassé.

fissure en cours de dégagement
Le support composé d'un mortier de chaux est assez tendre à purger. Avant de remettre des tesselles neuves, il faut dégager la fissure de tous les éléments décollés.

restauration ancienne
Le sol présente quelques zones anciennement restaurées.

restauration en cours
Après avoir dégagé l'ancienne restauration, nous reposons des tesselles neuves en marbre de carrare pour compléter la bandeau. Le mortier se compose de chaux, sable et poudre de brique, totalement compatible avec le mortier d'origine.

nettoyage à la monobrosse
Le nettoyage complet du sol redonne immédiatement un bel éclat à la mosaïque.

enfilade de tapis en mosaïque
Restauration achevée.

finition à la cire
La dernière touche consiste à déposer et lustrer une cire qui protègera la mosaïque de nombreuses années.
